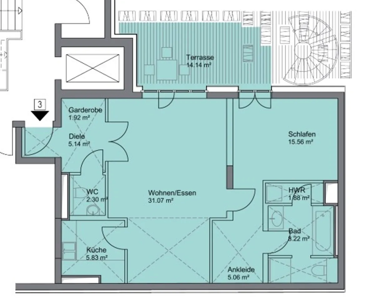
Diese großzügige, rund 84 m² große Wohnung vereint der neue moderne Wohnkomfort mit Stil. Hohe Decken, große Fenster und ein durchdachtes Raumkonzept schaffen ein helles und einladendes Ambiente.
Wohnung • Baujahr 2010 • Erstbezug
Neubauwohnung im beliebten Friedrichshain
84 m²
2 Zimmer
2. Etage
Balkon
New Living Immobilien hat uns nicht nur eine Wohnung gefunden, sondern ein Zuhause geschaffen. Ihre Professionalität hat uns von Anfang an überzeugt.
2 Zimmer
- 1 Schlafzimmer
- 1 Wohnzimmer
- 1 Badezimmer
- 1 Küche
Ausstattung
- Badewanne
- Einbauküche
- 789.900 €
- Gesch. Kaufpreis
- 23.618 €
- Provision (inkl. 19% USt.)
- 480 €
- Hausgeld / Monat
- 17.299 €
- Gesch. Kaufnebenkosten
- 25.000 €
- Gesch. Mieteinnahmen / Jahr
- 3.16 %
- Gesch. Rendite
Lage
Mitten in der Hauptstadt, mitten im Kiez, mitten im Leben: Ob mit Freunden grillen im nahegelegenen Volkspark, ein Bummel über den Flohmarkt am Boxhagener Platz oder auf ein Getränk in eines der vielen kleinen Cafés einkehren – Friedrichshain lässt einfach keine Wünsche offen.
Beim Anzeigen der Karte werden Inhalte von OpenStreetMap geladen. Dabei wird Ihre IP-Adresse an Server von OpenStreetMap Foundation (OSMF) im Vereinigten Königreich oder der EU übertragen.
Mit Klick auf „Karte anzeigen“ stimmen Sie dieser Datenübertragung zu.
Sonstiges
Energieausweis vorhanden. Herunterladen
New Living Immobilien hat uns nicht nur eine Wohnung gefunden, sondern ein Zuhause geschaffen. Ihre Professionalität hat uns von Anfang an überzeugt.
Kontakt aufnehmen
Kontaktieren Sie uns für Ihre Immobiliensuche! Wir helfen Ihnen umgehend etwas passendes zu finden.